Listing Details

For more information on this listing or other please contact me.

Courtesy of MaxWell Polaris.
Data was last updated 2025-06-25 at 20:18:11 GMT

9519 151 Street   Edmonton, Alberta

$2,179,999
MLS®: E4470525
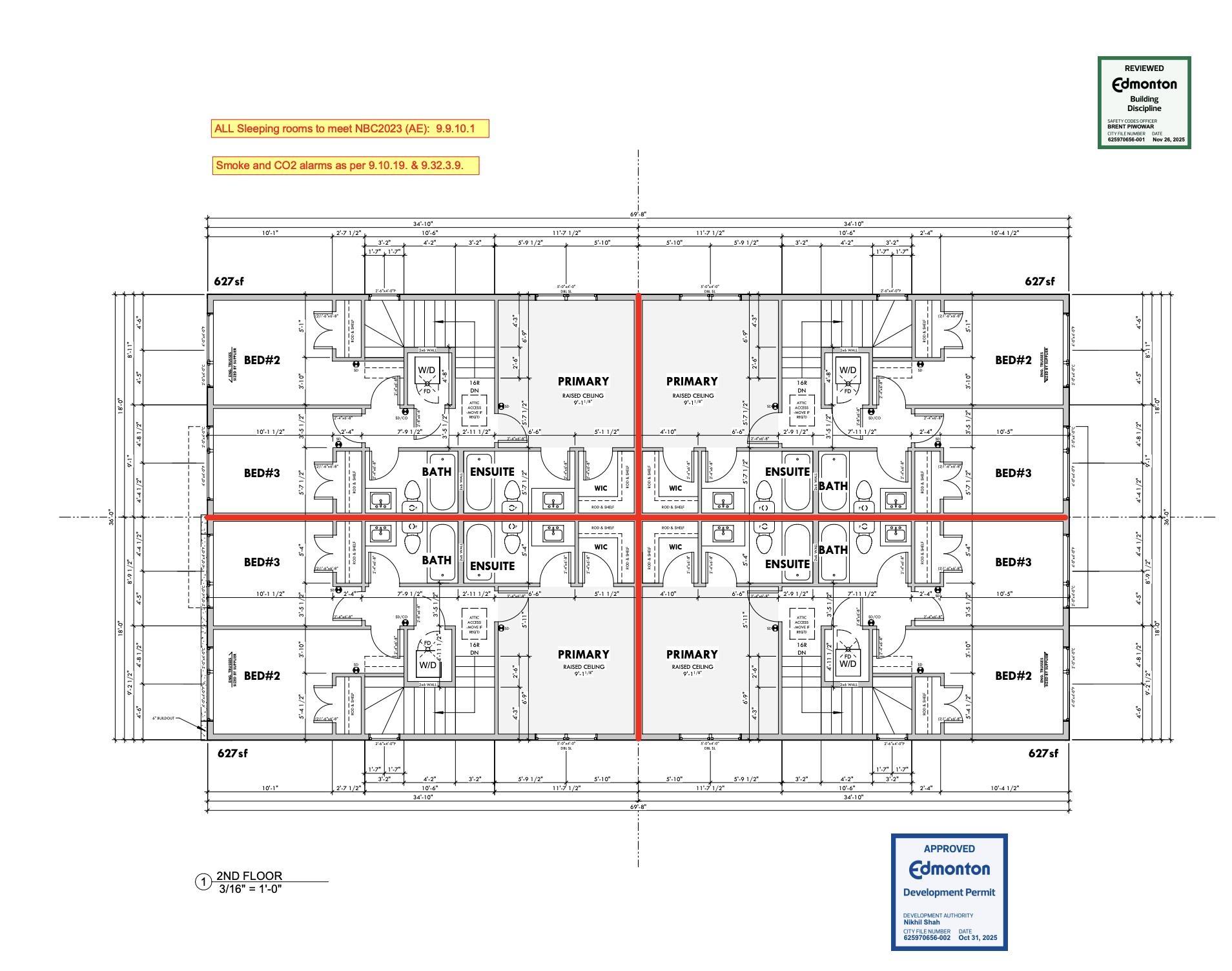
Proposed four-plex located in the established community of West Jasper Place. Development Permit and Building Permit approved. The fourplex offers approximately 5,016 sq. ft. of above-grade living area, averaging 1,254 sq. ft. per unit, with 16 bedrooms and 16 bathrooms. Each unit features an open-concept main floor, an upper level with three bedrooms, including a primary bedroom with an ensuite, and a basement with a legal secondary suite providing a separate entrance, kitchen, living area, bedroom, bathroom, in-suite laundry, and separate mechanical rooms for the main and secondary dwellings. Exterior finishes include a stucco front elevation, triple-pane windows, precast concrete steps, driveway, four-car garage, and full landscaping. Situated on a tree-lined street with access to schools, shopping, and public transit. Construction is anticipated to begin shortly, with completion projected for early 2027. Property is intended to qualify for the CMHC MLI Select Program.

Proposed four-plex located in the established community of West Jasper Place. Development Permit and Building Permit approved. The fourplex offers approximately 5,016 sq. ft. of above-grade living area, averaging 1,254 sq. ft. per unit, with 16 bedrooms and 16 bathrooms. Each unit features an open-concept main floor, an upper level with three bedrooms, including a primary bedroom with an ensuite, and a basement with a legal secondary suite providing a separate entrance, kitchen, living area, bedroom, bathroom, in-suite laundry, and separate mechanical rooms for the main and secondary dwellings. Exterior finishes include a stucco front elevation, triple-pane windows, precast concrete steps, driveway, four-car garage, and full landscaping. Situated on a tree-lined street with access to schools, shopping, and public transit. Construction is anticipated to begin shortly, with completion projected for early 2027. Property is intended to qualify for the CMHC MLI Select Program.

Listing Information

Prop. Type:
Quadruplex
Property Style:
2 Storey
Status:
Active
City:
Edmonton
MLS® Number:
E4470525
Bedrooms:
4
Neighbourhood:
West Jasper Place
Area:
Edmonton
Province:
Alberta
Listing Price:
$2,179,999

General Information

Year Built:
2026
Total Square Feet:
5016ft2

Additional Information

Basement Dev:
Full, Finished
Parking:
See Remarks

VIP-Only Information

Sign-Up or Log-in to view full listing details:
Sign-Up / Log In
This property is listed by MaxWell Polaris and provided here courtesy of Ashley Agent. For more information or to schedule a viewing please contact Ashley Agent.
Ashley Agent
RealPageMaker
Phone: 1-844-257-9396
Mobile Phone: 555-555-5555
Inquire Via Email
Data is deemed reliable but is not guaranteed accurate by the REALTORS® Association of Edmonton.