Listing Details

For more information on this listing or other please contact me.

Courtesy of Sable Realty.
Data was last updated 2025-06-25 at 20:18:11 GMT

14116 95 Avenue   Edmonton, Alberta

$1,499,000
MLS®: E4470988
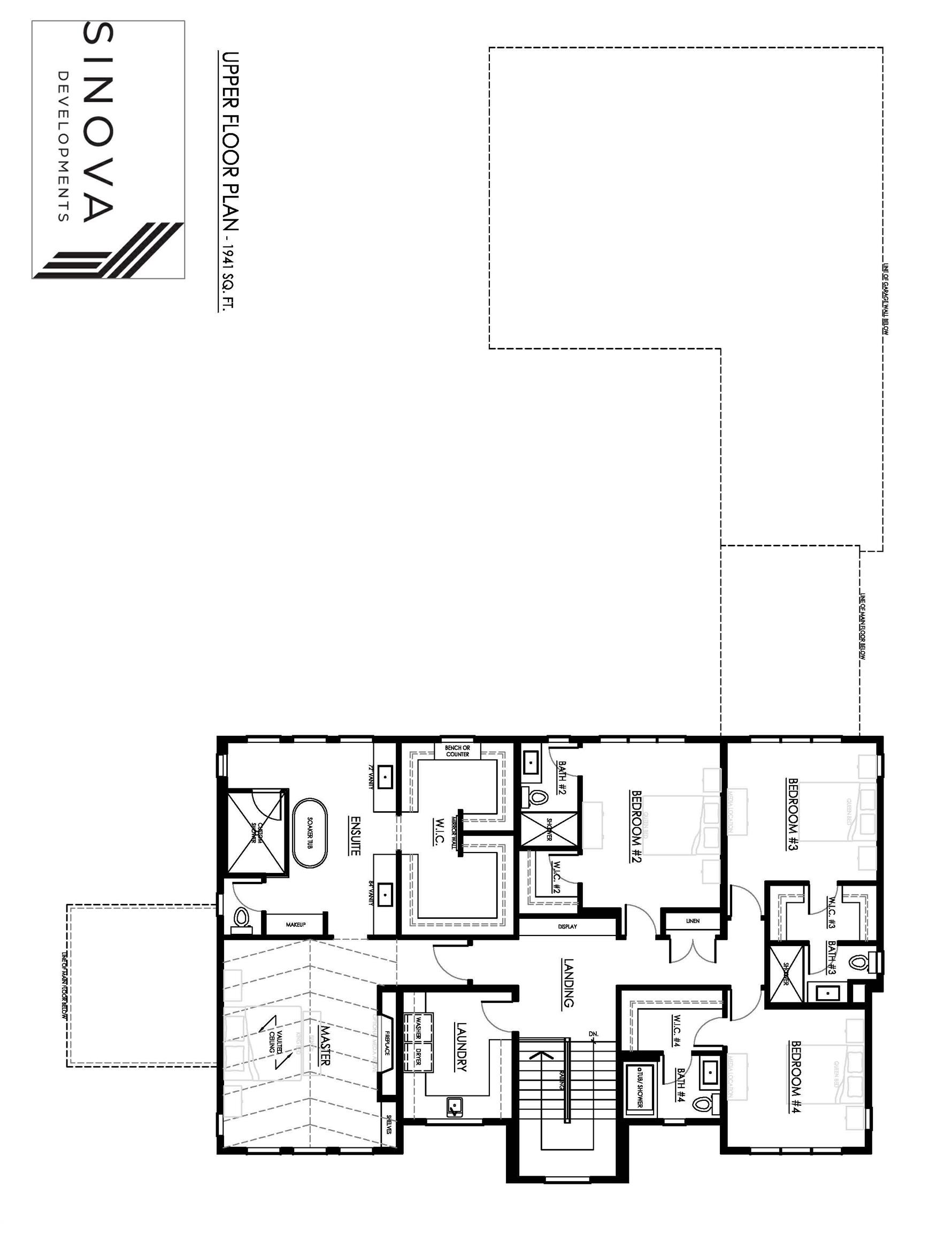
Rare opportunity to acquire a development-ready residential lot with approved building permits and plans. Existing home has been demolished, and the site is cleared and ready for immediate construction, saving time and soft costs. Approved design is for a custom luxury home exceeding 4,326 sq ft, featuring a rare 4-car rear attached garage and a well-planned layout. Purchasers may proceed with the current plans or explore customization options. Ideal for an end user or investor seeking a turn-key build opportunity in a desirable location, with the option to work with an experienced builder to deliver a fully custom dream home.

Rare opportunity to acquire a development-ready residential lot with approved building permits and plans. Existing home has been demolished, and the site is cleared and ready for immediate construction, saving time and soft costs. Approved design is for a custom luxury home exceeding 4,326 sq ft, featuring a rare 4-car rear attached garage and a well-planned layout. Purchasers may proceed with the current plans or explore customization options. Ideal for an end user or investor seeking a turn-key build opportunity in a desirable location, with the option to work with an experienced builder to deliver a fully custom dream home.

Listing Information

Prop. Type:
Vacant Lot/Land
Status:
Active
City:
Edmonton
MLS® Number:
E4470988
Neighbourhood:
Crestwood
Area:
Edmonton
Province:
Alberta
Listing Price:
$1,499,000

VIP-Only Information

Sign-Up or Log-in to view full listing details:
Sign-Up / Log In
This property is listed by Sable Realty and provided here courtesy of Ashley Agent. For more information or to schedule a viewing please contact Ashley Agent.
Ashley Agent
RealPageMaker
Phone: 1-844-257-9396
Mobile Phone: 555-555-5555
Inquire Via Email
Data is deemed reliable but is not guaranteed accurate by the REALTORS® Association of Edmonton.