Listing Details

For more information on this listing or other please contact me.

Courtesy of Royal Lepage Noralta Real Estate.
Data was last updated 2025-06-25 at 20:18:11 GMT

6 BRIARWOOD Village   Stony Plain, Alberta

$450,000
MLS®: E4482774
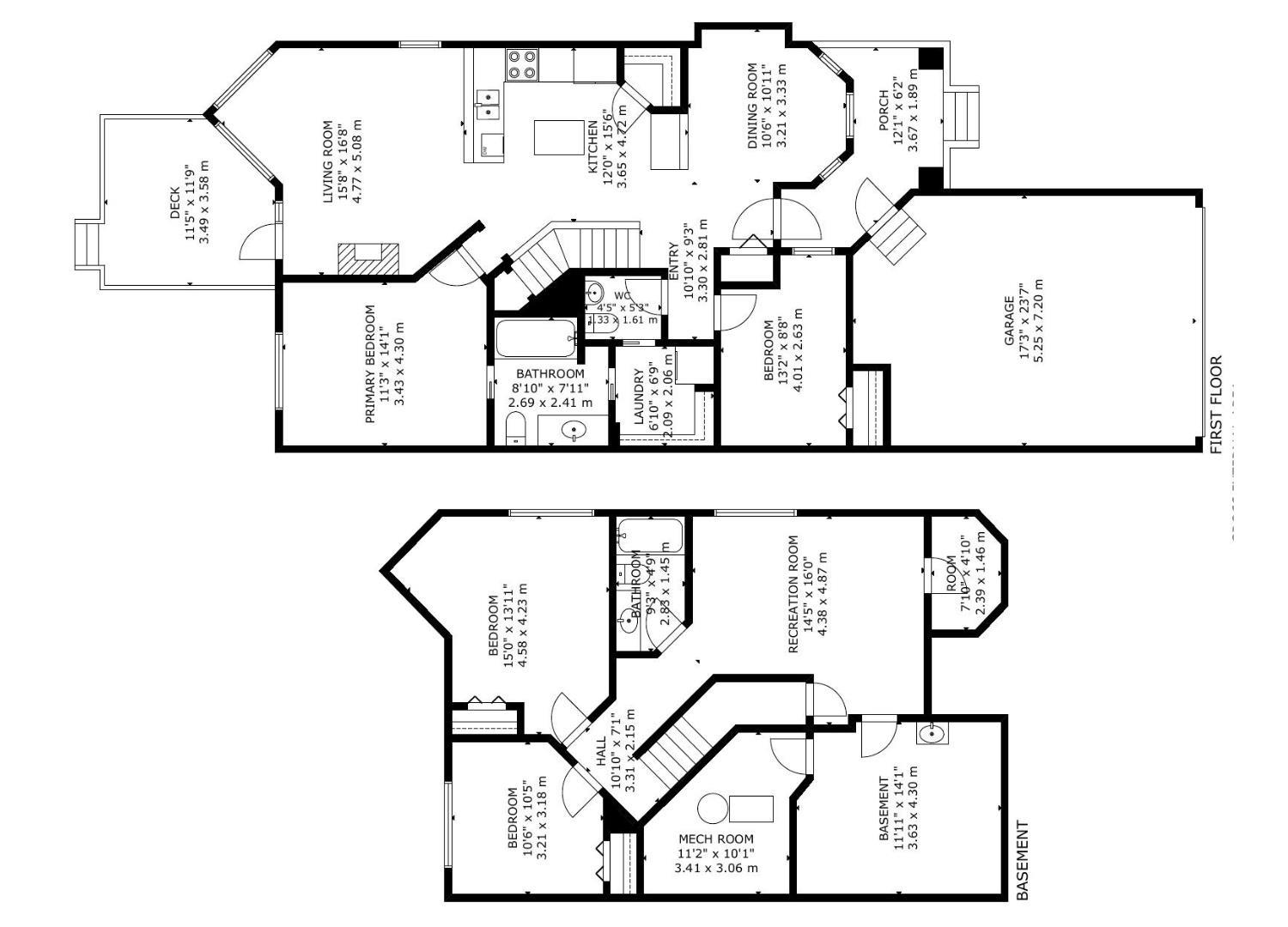
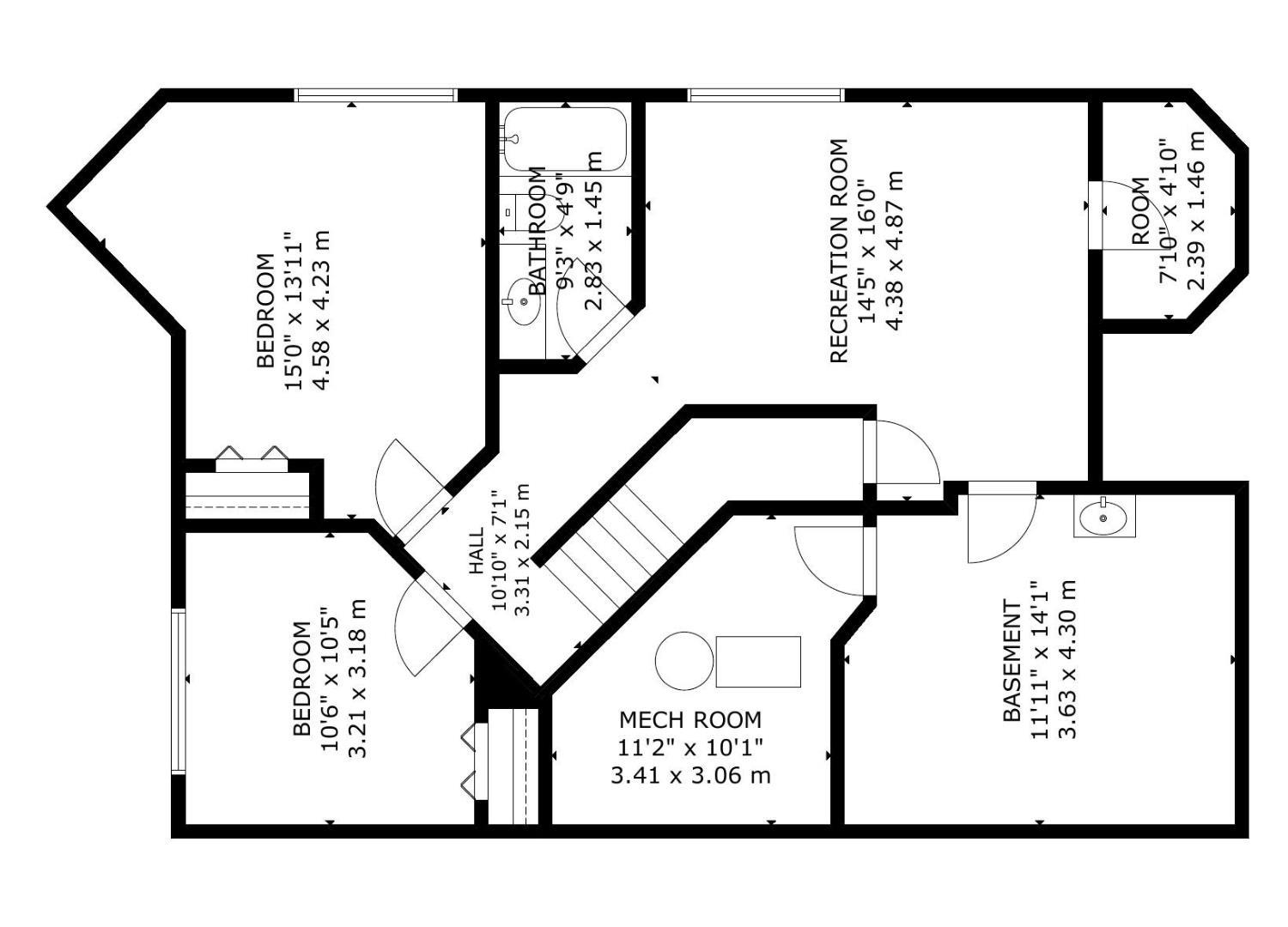
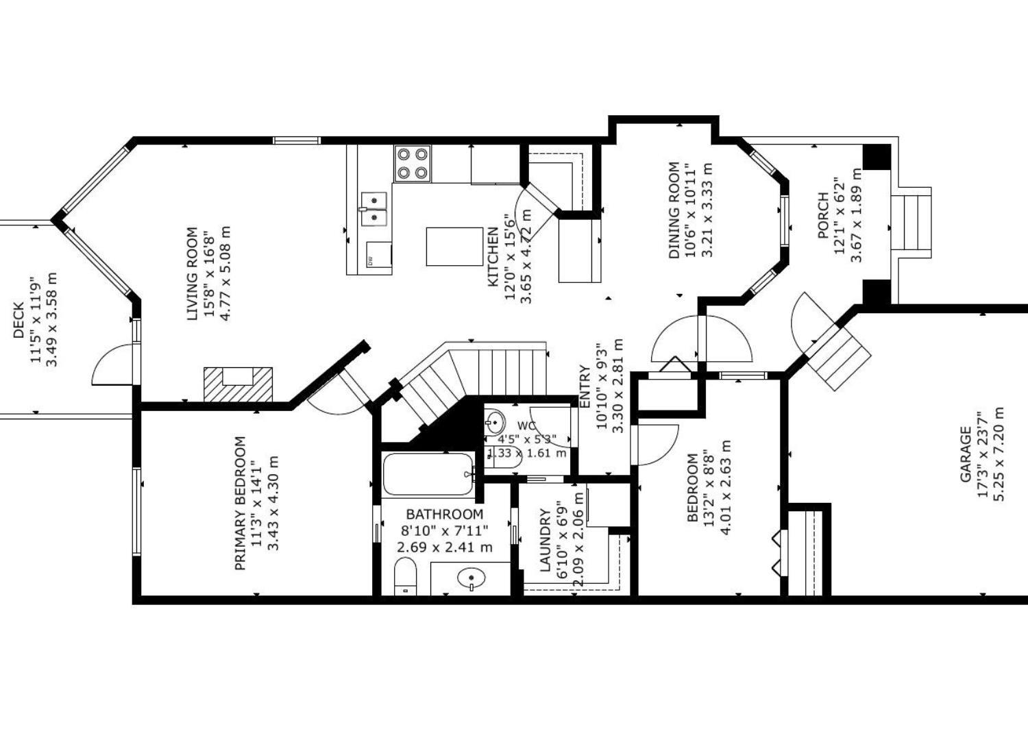
Charming bungalow half-duplex with attached double garage (18Wx24L, insulated) in a 55+ condo community, Briarwood Village. This 1,154 square foot (plus full basement) home features hardwood & tile flooring, main floor laundry and vaulted ceilings. Gourmet kitchen with island, two-tiered peninsula, built-in dishwasher & corner pantry. Bright formal dining room with bay window. Living room with gas fireplace, deck access and large windows. Finishing off the main level are 1.5 bathrooms and 2 bedrooms including the owner?s suite with 4-pc ensuite and walk-in closet with laundry. The fully finished basement boasts 2 more bedrooms, 4-pc bathroom, family room, storage room and an additional large room with sink & cabinetry that is roughed in to be a future second kitchen. Outside: east facing deck with posts for a hammock. Landscaping maintenance & snow removal is included in condo fees. Located on a quite no-through road near Stony Plain Golf course and walking trails.

Charming bungalow half-duplex with attached double garage (18Wx24L, insulated) in a 55+ condo community, Briarwood Village. This 1,154 square foot (plus full basement) home features hardwood & tile flooring, main floor laundry and vaulted ceilings. Gourmet kitchen with island, two-tiered peninsula, built-in dishwasher & corner pantry. Bright formal dining room with bay window. Living room with gas fireplace, deck access and large windows. Finishing off the main level are 1.5 bathrooms and 2 bedrooms including the owner?s suite with 4-pc ensuite and walk-in closet with laundry. The fully finished basement boasts 2 more bedrooms, 4-pc bathroom, family room, storage room and an additional large room with sink & cabinetry that is roughed in to be a future second kitchen. Outside: east facing deck with posts for a hammock. Landscaping maintenance & snow removal is included in condo fees. Located on a quite no-through road near Stony Plain Golf course and walking trails.

Listing Information

Prop. Type:
Duplex
Property Style:
Bungalow
Status:
Active
City:
Stony Plain
MLS® Number:
E4482774
Bedrooms:
4
Neighbourhood:
Graybriar
Area:
Edmonton
Province:
Alberta
Listing Price:
$450,000

General Information

Year Built:
2005
Total Square Feet:
1152ft2

Additional Information

Basement Dev:
Full, Finished
Parking:
Double Garage Attached, Insulated

VIP-Only Information

Sign-Up or Log-in to view full listing details:
Sign-Up / Log In
This property is listed by Royal Lepage Noralta Real Estate and provided here courtesy of Ashley Agent. For more information or to schedule a viewing please contact Ashley Agent.
Ashley Agent
RealPageMaker
Phone: 1-844-257-9396
Mobile Phone: 555-555-5555
Inquire Via Email
Data is deemed reliable but is not guaranteed accurate by the REALTORS® Association of Edmonton.